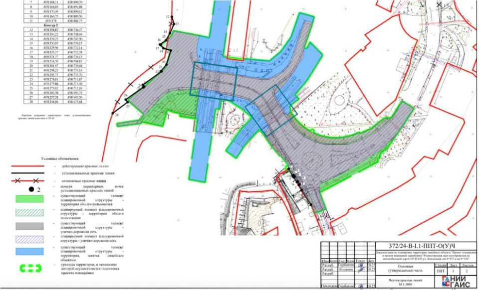
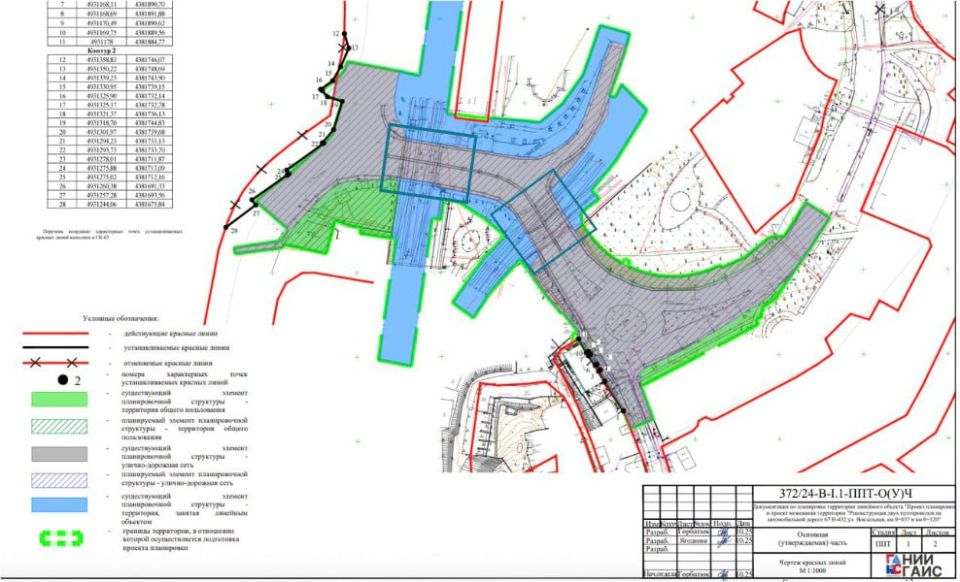
Проект реконструкции «Днепровского моста» у железнодорожного вокзала вынесли на обсуждения
Согласно документам, на мосту сохранится 5 полос, при этом расчетная скорость снижена с 60 до 50 км/ч. Об этом пишут наши коллеги из интернет-портала ForPost.
Сейчас ширина двух участков путепровода составляет с учётом тротуаров 22,69 и 23,77 м. Однако по проекту мост должен стать немного шире: проезжая часть – 22,15 м, ширина тротуаров – 2,75 м.
Вероятно, что эти данные определены для каждого из участков, однако в Департаменте транспорта эту гипотезу не подтвердили, предложив дождаться положительного заключения экспертизы.
Кроме того, демонтаж и реконструкцию моста предлагают вести при частичном закрытии Вокзальной улицы. При этом для водителей будет доступна одна половина проезжей части.
Общественные обсуждения проходят до 17 февраля. Внести предложения и замечания севастопольцы могут до 13 февраля на сайте правительства по ссылке, а также письменно в рабочие дни с 9 до 17 часов по адресу: ул. Рабочая 5а.










































